精品住区 复合型租赁社区的规划设计和空间营造
2025.11.18
|
01. 项目背景 Background Information
党的十九大报告提出“加快建立多主体供给、多渠道保障、租购并举的住房制度”。北京市先后颁布多项鼓励利用集体土地建设租赁住房的政策,利用集体土地建设租赁型居住社区,为城市流动人口提供经济性住房,使城中村农民和集体共享城市发展红利,促进了城乡空间优化和城市环境提升。
北京市门头沟区是北京城市总体规划空间结构中的西部生态涵养区,在2017—2035年国土空间规划中,不仅定位为以自然山水为核心的京西后花园,还规划为产城融合、宜居宜业的首都西部创新示范新区。良好的住房和生活服务保障为新城产业发展提供了重要支撑与产业吸引力。
门头沟区永定镇集体租赁住房项目位于门头沟新城南部片区,紧邻中关村门头沟科技园产业片区。北侧为G108京昆高速公路,周边有西六环路和新城大街,以及S1地铁线,交通便捷。规划建筑功能涵盖家庭型租赁住房、公寓型租赁住房、商业服务设施、社区食堂、社区公共活动空间、幼儿园、助残和养老服务及其他社区配套服务设施等,是多功能复合型租赁居住社区。项目规划超1200套不同类型的租赁住房。作为集体土地规划建设租赁住房试点项目,其建成后将为门头沟新城打造首都西部创新示范新区提供良好的居住和服务保障。
▲鸟瞰效果
02. 功能定位 Functional Orientation
针对周边租赁人群开展调研,发现客群在年龄、家庭结构和居住需求方面具有多样性,故租赁住房套型配置需满足多样化功能需求。项目租赁住房套型包括一居室、两居室、三居室家庭型套型,以及以开间形式为主的公寓型套型,二者按照调研需求比例进行分区分类规划。
项目周边基础配套设施匮乏,需在满足基本居住区配套服务设施基础上,适当补充针对租赁客群的服务设施。项目拟通过结合用地条件的组团化布置、生活配套服务体系的情景化营造、功能性和经济性兼顾的套型设计,以及适宜的建筑技术应用等措施,构建邻里交流共享、全龄友好、便捷舒适、绿色生态的宜居社区。在功能与空间、生活与服务、形态与环境等方面打造高标准复合型租赁社区。
▲总平面图
▲社区实景
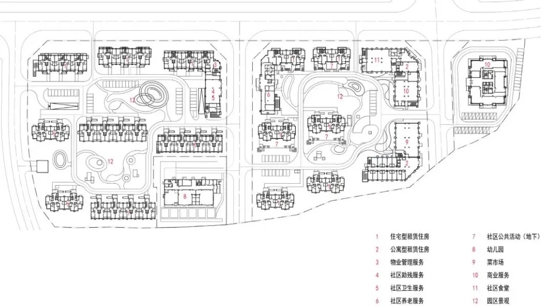
03. 规划布局 Urban Layout Planning
以“2个开放街道+3个居住组团”为项目整体规划布局,旨在通过南北向的社区服务街和商业服务街,以及3个居住组团,打造既便捷舒适,又具有归属感的租赁型社区,满足居民日常生活需求及促进邻里交流。
2条南北向街道功能定位不同,西侧街道更接近社区中心位置,定位为社区服务街,集中布置幼儿园、养老服务、助残服务、卫生服务、物业和租赁服务等设施,主要服务于社区居民,旨在为社区提供专属便捷的全龄服务;东侧为商业服务街,主要提供商业及生活服务,集中设置餐饮、商超等商业设施,街道布局充分考虑与城市功能的衔接,布置于与城市相连的卧龙岗桥方向,旨在将居民的日常通勤与商业服务有机结合。2条街道均为尽端式道路,日常并无外部车辆通行,有利于形成社区专属的人车混行开放式街道。
2条南北向街道将项目自西向东分为3个居住组团,依次为家庭型居住组团、混合型居住组团、青年型居住组团。家庭型居住组团面向以家庭为租住单元的客群,提供住宅型租赁住房,如一居室、两居室、三居室等;混合型居住组团为更加年轻化的租赁客群提供居住空间,套型包括一居室和公寓型住房,同时在组团内配置适宜青年人的共享公共空间;青年型居住组团地处最东侧区域,主要面向青年客群,或作为企业宿舍使用,主要房型为公寓型住房,套型设计充分考虑多种可变需求,包括但不限于集体宿舍、居家办公等。
>全龄友好
项目依据全龄友好社区理念进行功能与空间规划。通过优化社区整体规划,满足各年龄层居民的教育、娱乐、养老、商业等服务需求,增强社区凝聚力与归属感,提升居民生活的便捷性与幸福感。项目为儿童、青年、老年、残障人士等不同群体提供多功能配套服务设施,确保居民在社区内获得相应服务。
▲配套服务设施分布
社区最南侧规划1所幼儿园,提供托管服务。幼儿园选址于外部尽端道路末端,为家长接送幼儿提供安全的缓冲空间。社区内部设置多处儿童室外活动场地和亲子活动空间,促进亲子互动和邻里交流。
社区为青年提供不同种类的活动交往空间,包括室内公共活动空间和室外健身活动空间。其中,位于社区中心住宅地下室的社区公共活动空间设置咖啡厅、书吧、多功能活动室、健身房、图书馆等共享空间,增强了社区活力和吸引力。
社区中心街道两侧规划养老服务、助残服务、卫生服务等设施。养老服务设施可提供日间照料服务,包括餐饮、健康监测、康复训练、文娱活动等。公共设施均按适老化和无障碍需求设计,助残服务中心和社区卫生服务中心结合设置,与养老服务设施毗邻,提供基础医疗服务和助残服务。
基于服务对象特征,将托幼托老、助残卫生、社区管理等功能集中设置于社区中心区域,以适宜的通达半径为居民日常使用提供便利。结合社区室内与室外公共空间,分散布置适合青年群体的配套设施,构建不同场景功能的活动交流空间。
>特色配套
社区东北侧为城市主要通勤方向,与区域产业片区相连。规划充分考虑居民日常通勤需求,并结合商业服务设施布局,打造既能满足通勤需求,又能提供便捷生活服务的商业服务街。针对大量家庭型租赁客群,商业服务街为菜市场、小型超市、商业网点、餐饮、金融、邮政等多种业态预留经营空间。针对社区周边服务设施匮乏现状,完善商业服务配套设施,旨在为社区构建相对完整的生活服务体系。
▲生活街区效果
社区东侧为适应青年租赁客群和企业宿舍客群的公寓型租赁住房设置社区食堂,满足日常餐饮需求。社区食堂位于通勤主干道附近,方便青年租赁者和企业员工上下班就餐。社区食堂采用开放式设计,可容纳不少于300人同时就餐。公寓楼内分散设置共享活动空间和公共洗衣间,为青年客群提供交流和洗衣场所,同时补充公寓型租赁住房部分套内功能的缺失。
社区公共活动与交往空间是增强居民社区归属感的重要空间,项目将建筑室内地下空间和室外下沉庭院相结合,打造可供不同年龄段居民共享使用的多元空间。
▲鸟瞰效果
▲下沉庭院剖面
>套型多样
随着城镇化进程加快和租赁市场迅猛发展,租赁客群需求日益多样化。为满足不同客群的生活需求,租赁套型需在考虑经济性、功能性、舒适性、多样性基础上实现紧凑型设计。本项目包含家庭型租赁住房和公寓型租赁住房。
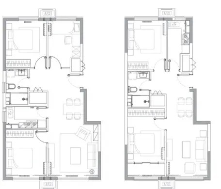
▲ 典型套型平面 家庭型三居室(左一)、家庭型两居室(左二)
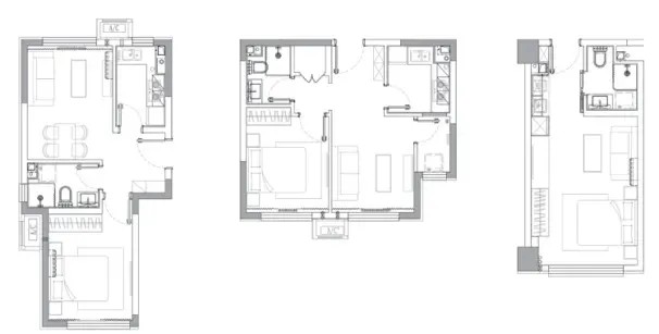
▲典型套型平面 家庭型一居室(左一、左二)、公寓型(左三)
① 家庭型租赁住房 面向以家庭为单位的租赁客群,包括一居室、两居室、三居室套型。套型设计需保证套内功能完整性、房间尺度舒适性及布局合理性。楼栋内公共空间尽量紧凑集约,使套型面积利用效率实现最优化。套内空间除具备居室与厨卫基本功能外,还应考虑玄关空间、晾晒区域、储藏空间及卫生间干湿分区等设计,力求在较小空间中实现功能完整性。居室尺度应在对双人床、沙发等大型家具的尺寸及布局进行分析后予以确定,以确保使用舒适度。套型空间结构尽量简化,以应对未来功能可变性。
② 公寓型租赁住房 面向青年客群、单身客群及企业员工客群。客群特点是年轻、流动性强、生活节奏快、注重生活品质和社交体验。套型设计以开间为主,面积紧凑但功能齐全。居住功能以休息为主,无烹饪与家庭交流需求,更青睐于居家办公和个人兴趣空间需求。开间式公寓的开放式套内空间更注重个人生活喜好,适应家具个性化布置,以满足此类客群生活习惯。厨房与家庭交流功能趋于简化,套内家庭公共空间转移至社区共享公共空间,满足其休闲与社交需求。公寓首层大堂集中规划物业办公空间、快递收发空间、自助售卖机放置空间,在公寓出入口附近设置非机动车集中停放区域,并提供充电设备。
家庭型租赁住房与公寓型租赁住房套型设计均按照全装修交付标准要求,可有效提高房屋质量,降低装修成本,提高交付效率,有利于交付后的租赁管理和维修服务。
>弹性设计
相较于自有住房,租赁型住房的使用者更迭频繁,因此对套型设计的通用性与可变性具有较高要求。为使租赁型住房套型契合不同时期、不同生活习惯客群的多样化功能需求,应尽可能考虑空间功能的兼容性。
本项目在部分家庭型租赁住房套型中引入弹性设计理念,旨在通过灵活的空间设计使套型空间适应不同家庭结构和生活方式的变化,满足全生命周期多样化需求。设计核心在于适应性与可变性,确保在套型主体结构不变的前提下,根据家庭需求变化进行灵活调整和改造。
以项目数量较多的家庭型两居室为例,该套型通过规整的结构布置、平整的外墙轮廓、集约的机电管线等实现空间弹性设计。承重墙体均设置于分户墙与外墙处,套型内部不布置承重墙,楼板采用整体结构形式,避免套内天花板出现结构梁。套内天花板平整且内部无承重墙的较大空间为房间分隔提供了多种可能性。南北外围护墙取平,在提升结构经济性的同时,降低对南北主要房间朝向分隔的限制,使房间具备更多变化可能。排气道、给排水立管、强弱电箱等设施尽量布置于分户墙或阴角处,以减少未来对房间分割的干扰,增加厨卫平面变化的可能性。
家庭型两居室以年轻家庭客群为主,设计方案提供尺度相对舒适的卧室空间和餐客分离公共空间,扩大卫生间尺度并增设收纳空间。考虑到青年家庭居家烹饪频率降低,故适度控制厨房尺度。该套型通过结构布置规整化、外墙轮廓平整化、机电管线集约化,实现多种套型改造的可能性。设计可对厨卫轮廓进行调整,将2.0居室改造为2.5或3.0居室。该可变套型依据居住者生活习惯,实现卫生间干湿分离、增加收纳空间、扩大厨房操作台面、增大主卧面积等个性化改造。
▲ 可变套型平面 套型基础条件(左一)、2.0 居室(左二) 2.5 居室(左三)、3.0 居室(左四)
04. 结 语 Concluding Remarks
门头沟区永定镇集体租赁住房项目通过创新的规划设计和灵活的空间布局,打造功能复合、全龄友好的租赁社区。设计充分考虑租赁人群的多样化需求,提供多种套型选择,通过弹性设计和贯彻可持续发展理念,确保建筑在全生命周期内的适应性和可变性。从家庭型租赁住房到公寓型租赁住房,从商业服务街到社区服务街,从社区食堂到社区共享公共空间,均体现出设计团队对居民生活品质和社区归属感的重视。项目不仅为门头沟新城的产业发展提供强有力的居住保障,还促进了租赁住房的可持续发展,为门头沟区的城乡融合、职住平衡及城市空间优化注入新活力。
(作者:袁元、王琪、石悦、吴冰、李阳) |













