解码住区隐形逻辑 (中)
2020.07.07
《解码住区隐形逻辑》系列文章分为上、中、下三部分,是维拓设计精品住区产品线的课题研究分享。在上篇中讲述了文化住宅八大策略中的礼序、聚合、趣境,在此篇章中我们将解码居住格局,人有人格,局含气度,品味"铺"、 "陈"、"融"、"介" 四大空间语汇之境。

序
"原型" 与 "格局"
■ 原型
四方上下曰"宇",往古来今曰"宙"
在中国文化语境中,人处于天地之间,处于“中”,承天伏地,天人合一。古希腊智者普罗泰戈拉在《论真理》中说:"人是万物的尺度";现代建筑大师柯布西耶的模度系统探索人体工程中的数学逻辑…
人对宇宙和自然的认识构建出多元文化的居住原型,不断引导我们走向对内心和自我的观照。现代住区作为我们研究的本体,作为东方居住观的载体,延续着 “礼、合、藏” 的居住逻辑;在自然、社会和多元文化因素制约和影响下,体现出中国特色的融合共生。
■ 格局
人有人格,局含气度
于“人”而言,格局意味着看待事物的高度和视野; 于“住”而言,格局是时间维度中始终存在的格式与框架,是生活的载体和种种体验的集合。居住空间中既需要有对原型文化的熟悉感,也需要制造对新奇感受的惊喜感。生活哲学在格局和多样化的体验之间不断的得以延展和继续。
《解码住区隐性逻辑》中篇,我们将关注居住格局——均衡、秩序、和谐、流动、区域、氛围等种种现象之中的文化心理诉求,在现代空间营造格局之中,我们归纳了 "铺"、"陈"、"融"、"介" 四个各具特色的东方语汇。

04


北京颐和安缦
中国传统社会的运行模式是一种泛家庭主义模式,聚集而居的宗族模式随着时代发展不断衍变,居住观念不只限于个体家庭,而是在长期的发展中形成的同一种文化和生活行为方式。
现代居住空间多是理性文化逻辑主导下的功能集合,贯穿在现代居住模块的串联组织、陈设的细节氛围等各个层次。源于大家庭文化的传承和自我意识的扩展,居住格局具有功能性、礼仪性、展示性、归属感等多种属性的求。
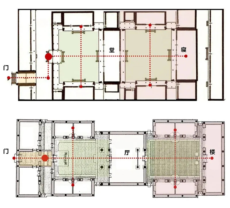
解码13:均衡的空间布局

北方民居格局的空间构成:方正、均衡、注重动线控制和层次的递进

动静分区、方正均衡的现代住宅格局,与传统居住空间的门堂寝一脉相承
从礼制的象征和风水环境心理学,传统入户空间通过多重门、对景、照壁的组合塑造东方特色居住心理习惯。现代住宅延续了这种设计手法,结合垂直、公共交通对门、屏、墙的元素进行多种演绎,形成丰富的组合空间序列。

① 门:传统大门-二门的格局,现代演化成电梯门-户门格局
② 屏、墙:照壁、屏门手法广泛运用于高层住宅,形成入户的多重心理过渡和视线控制
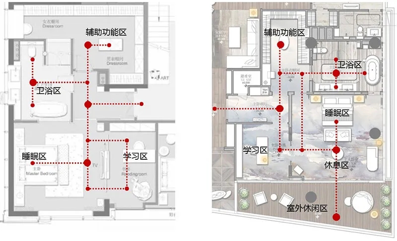
解码14:递进的空间序列
院落组合层次蕴涵着礼仪文化和居住伦理观,群体空间组合通过院落居住单元的分形构成整体的城市肌理。现代居住空间多为集中式的格局,以公共空间为中心形成多个居住模块的组合分形,而每个居住单元中的分形空间也都遵循相同的组织逻辑,如视线的控制和空间的秩序。

集中式的高层住宅分形格局-三套房 与 分散式的低层住宅分形格局-三套房
单元居住模块可拓展为睡眠区、学习区、卫浴区、辅助功能储藏区,每个细部空间都可形成自相似的空间秩序和陈设逻辑,形成逐步递进的空间序列。

居住单元内的每一个空间都存在着分形的秩序和自相似的文化逻辑
解码15:陈设与空间的关联
在中国传统建筑框架结构体系和标准规格化的平面格局中,发展出多样化且灵活的内部空间分隔和组织方式,这与现代的室内设计观念基本是一致的,正如李允铢所说 "并不是一种巧合,或者为了取得一致,或者基于美学理论,而二者同时都是基于‘标准化’的平面以及‘框架式’结构的共同条件下的产物"。
传统室内利用固定隔断、槅门、博古架、罩、帷帐、可移动的屏风等进行空间限定和层次穿透交叠,兼有功能性和陈设性。作为中国建筑最早的内部空间元素,屏风是兼具装饰特征和灵活性的陈设,也是一种行为方式,反映的是中国传统的空间观。唐韩熙载夜宴图中有五组场景,听乐、观舞、暂歇、清吹、散宴,五段情节以三组屏风隔扇加以分隔,又巧妙地相互联结,场景显得统一完整。屏风成为衔接不同时空场景的道具。

屏风--中国画中的时空转换器
桌椅家具和陈设方式会影响空间的整体布局、尺度控制,划分不同的功能区域,营造空间礼仪。如王世襄所说:“研究古代家具和人的关系,看它们在往日生活中如何被陈置使用,是一个重要而有趣味的课题。”现代家具和陈设应该在功能的基础上更加注重人文和审视的心理需求,陈设与空间的结合是住宅精细化设计的重要课题之一。

解码16:诠释核心聚合空间
有意识的创造一个完整而合用的露天空间是东方建筑的特色,现代居住空间源于传统家庭观念往往会营造一个内在的核心空间。
现代生活由此衍生出多样化的聚合空间形式,体现在待客仪式感、就餐方式等多种细节,如客厅与阳台书房的结合呼应院落层次感,就餐空间注重礼仪主导,多功能厅和交流空间多为第二客厅或院落的角色。跃层住宅中的挑空部分多在客厅和餐厅区域,是院落在垂直空间上的演绎。

以采光庭院为中心的顶层集合住宅空间 和 以景观庭园为中心的日本住宅布局
中小户型中,集约型的聚合空间更强调仪式感和通透感,以聚合型院落为居住原型,公共空间注重家庭成员的团聚及交流功能,起居室、阳台、餐厨通常形成横向或纵向的一体化设计,呈现出通透宽敞的视觉效果。
05


住宅的情趣和品质往往在于空间的丰富和延展度,其存在于室内空间的流动,也存在于室内外空间的融合;存在于个人自我空间的隔离感,也存在于小型社交空间的交介之处。
自然感受与人工科技的交融对话,个体行为和社交分享的心理诉求,现代集合住宅组织呈现出正负之间的空间美感,与东方园林的空间感有诸多相通之处,园林也是居住空间的重要灵感来源。
解码17:户内空间的连接
中国园林的空间艺术营造中,大中见小,小中见大,虚中有实,实中有虚,或藏或露,或浅或深,不仅在周迴曲折四字,“廊,桥,栏,径” 皆如文章中用虚字,有连贯作用。在现代住宅室内,居住空间的转折如同空间之间的连接符,通过入口、走廊、院落等空间来营造。

中粮瑞府户型庭院格局
空间的洄游也会为户内提供自由空间及更灵动的生活方式,提高空间的互动性和趣味性。

客厅、主卧、书房、餐厅的洄游动线,开放公共区域的洄游动线,室内外空间的洄游动线
解码18:户内外空间的对话
堂是开放的,院落是堂的延展,蕴藏了虚实相生的宇宙观。居住中的自然空间设计意在人与自然的联系与认知。

户内类"庭园"空间和嵌入式的院落作为虚空间的典型方式,融合室内外,形成居住空间布局的核心和亮点。来源于不同方位和尺度的自然光和风会直接影响内部空间的采光、开窗、陈设、布局。光的层次设计体现了东方的哲学和意境,是现代设计对东方居住观和文化的演绎和发展。
解码19:个性化空间的分与隔
基于群体性传统生活习惯及特定空间需求,形成了以文化行为为主体的多种功能空间需求。文化生活行为由于个体不同差别很大,文化行为空间的需求因此有共性需求和个性的需求。
学习行为空间:
传统书房被称为书斋,斋号起源晋唐,盛行明清,“斋”本义是斋戒之意。书斋是中国传统居室中最具特色的空间,除了书桌画案书架等必要的家具还有笔墨纸砚笔架等多种文具。园冶中提到“书房之基,立于园林者,无拘内外,择偏僻处,随便通园,令游人莫知于此”。

"书房之基,立于园林者,无拘内外,随便通园,令游人莫知于此"。
在现代生活中,“书房”空间在开放和私密之间可以相互转换,既可以连接主卧,形成更加独立自我的阅读场所,也可以与客厅连通,形成接待的第二客厅,同时也可以多功能形式出现兼具卧室、学习等多种空间性质。

书房与庭院结合、书房与卧室结合、书房与客厅结合、书房的复合功能
兴趣空间:
个人兴趣及个性化空间的需求是文化行为映射的结果,从人的基本需求到更高层次的精神需求,个性化需求成为空间的重要一环,空间因此需要具备兼容性和拓展的可能性。空间模式需对应和满足多样的生活行为需求,如茶室、棋弈、学习、音乐、梳妆、健身、绿植区、室外餐厅等等。
解码20:共享的社交生活介质
共享是社交空间最重要的特性,以灵活的建筑场所对社区居民开放。共享空间的活跃度直接构建了社区文化。社交空间与居住格局中的院落类似,是现代住区中个人居住领域的延展,也是传递情感的介质与载体。
与景观融合的功能化场所:基于东方文化的凝聚性和邻里关系,共享型的社区空间多为围合型、聚集性的空间形态,结合全龄化的社交需求,规划多样化的场所空间。园林景观与公共建筑融为一体,室内外相互贯通衔接。

万象新天规划 新加坡居住区规划

与建筑结合的垂直立体区域:
作为最贴邻个人领域的社交场所,共享以丰富的形式出现在集合建筑的底层、中部和顶部,多出现在更集约的城市居住设计中。屋顶露台、首层架空的处理,建筑中部挑空的处理和连廊的拉通,都可以为居住空间带来生活方式上的融合与质变,是未来住区值得进一步探讨的突破点。

中篇结语
非正式的逻辑语言转译
■ 传统居住观:【礼.合.藏】
礼:“无礼,无以立”,礼是中国文化的核心,也是整个中国人世界里一切习俗、行为的准则。
合:合反映的是某种相和的状态。曾经有人在谈论中国人追求的最高状态时,认为“知行合一”、“情景合一”、“天人合一”是最高境界。“知行合一”是思想与行为的心行一致;“情景合一”是心情与周边环境的观感效果;“天人合一”是人与自然的生态和谐。
藏:东方空间艺术,巧于因借,精在体宜,美在意境。
■ 从无形到有形,从语言到语境
现代的居住空间源于现代的生活方式,而传统以一种社会潜意识的经验留存在现代生活的各个角落。传统居住观本身不具备客观形式,但却有着相对稳定和抽象的表达方法。
从无形的文化逻辑到有形的空间语汇,东方居住观融入现代的居住需求,不仅体现在建筑的秩序和布局,也渗透在私密生活和社交空间之中。综合现代生活方式,可以在注重空间传统的体验性和现象性上,寻找更加清晰的时空感和秩序感,将格局形式与结构通过现代语言表达,注重在环境中的体验,注重人与环境之间的互动。
■ "礼序、聚合、趣境、铺陈、融介、横平、虚隐、风雅"
住区文化策略是对规划、空间、造型等现象和方法的总结。这些对居住逻辑的推论,宗旨是找到影响住区的特别之处,为设计提供可能的创意目录,赋予其更广泛的生存空间。
(作者:张画景)


