维拓建设 为城市点亮一盏知识的灯
2025.12.16
|
这里曾经是三里屯居民熟悉的老图书馆,也是许多人记忆中的阅读场景。而现在,我们有幸参与其蜕变为一座更具温暖、智慧和充满呼吸感的城市书房。
改变始于对“文化三里屯”的长期构想。作为打造国际消费中心城市核心商圈的重要一环,三里屯街道始终将文化空间建设视为连接社区、传承文明的关键载体。如今,这个400多平米的空间正以崭新的面貌呈现这一愿景:晨曦初透,微光自窗外倾泻而下,悬浮的尘粒在光影中翩跹起舞。沉睡书墙默然挺立,千万册书籍如沉睡的智慧密林,只待翻阅的指尖将其唤醒。随着时间缓慢的流动,空气里逐渐流淌着纸张摩挲的沙沙细响,偶尔夹杂着键盘的轻敲。读者们散落在阅读区:临窗的学子在木纹长桌上铺开笔记,光影在他笔尖跳跃;儿童区的孩子们盘坐在彩色的软垫上,被手中的绘本深深的吸引。
在信息奔流的时代,一座现代化的图书馆,早已超越了传统的藏书功能。它是一座城市静默而强大的精神坐标,是市民寻求知识、启迪与安宁的“第三空间”。 今天,我们带您走进三里屯街道图书馆装饰工程项目,一同回顾这座知识空间从旧到新、从蓝图到现实的改造历程。 程。
项目信息卡 项目名称:三里屯街道图书馆 项目地址:三里屯街道幸福二村38号楼四单元四层 建筑面积:450平方米 施工范围:室内精装修、综合天花、影音系统、灯光系统、全馆定制家具
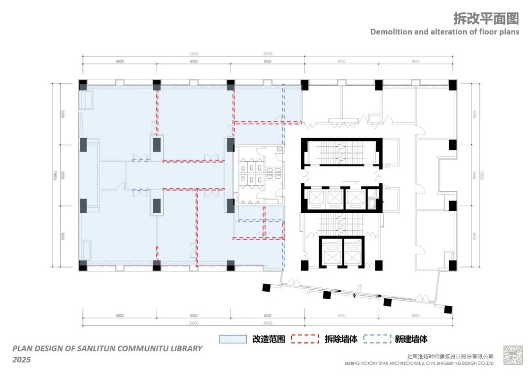
项目原始场地为小房间分隔的独立阅读区,动线及空间采光极为有限,改造伊始通过拆除各房间隔墙,获得合理规划动线条件的同时增加阅读和藏书空间的容效。
图书馆的灵魂在于其空间叙事。在设计之初,团队便确立了“静区”与“动区”清晰分离的原则。
静区:如普通阅读区、电子检索阅读区,我们将其置于采光良好且远离主干道的位置。
动区:如儿童阅览区、多功能区,则设置在入口附近,形成热闹的公共交流场。
通过动线的规划,读者从喧嚣的城市街道进入图书馆,会经历一个由动至静的过渡空间,心境也随之沉静下来,自然而然地投入阅读的氛围中。
02 空间巡礼:功能与感受的融合
1. 舒适阅读区:一场采光与光学的计算
自然光采光对于阅读的舒适度尤为重要。原有空间采用石膏板吊顶,吊顶下仅净高2.05m,在阳光充足的午后室内照度仍特别有限,我们考虑通过取消吊顶、规划管线、提升设备高度,使阅读空间获得充分的自然采光。
2. 搜索藏书区:安全、承重与美学的平衡
面对开放式的书墙,其承重与安全是施工的核心挑战,数次靠墙架倾倒的案例警示我们这是一个不可忽视的安全隐患。我们的解决方案是:局部采用钢结构作为骨架增强稳定性,外部覆以定制化的实木多层板。每一层书架都经过严格的承重测试,确保在满载书籍时也稳如磐石。
同时,所有书架阳角均采用圆角防撞工艺,书架两侧端头圆角背板增加靠墙稳定性,细节之处体现了对使用者的关注。
3. 儿童阅览区:一个安全、奇幻的探索乐园
这里是图书馆里最富童趣的角落。我们所有的家具都进行了圆角化软包处理,地面铺设了柔软的环保PVC地胶,即使摔倒也能得到缓冲作用。
色彩明亮的定制书柜被设计成小房子和树洞的形状,激发孩子们的探索欲。此区域独立设置在隔音玻璃室内,既让孩子们可以自由交流,又不干扰其他区域的宁静。
03 专项工艺:看不见的匠心
1.光影的艺术
全馆的灯光色温经过计算,从入口的4000K中性光,过渡到阅读区的3500K暖黄光,潜移默化地引导情绪,营造专注氛围。
2. 材质的对话
我们大量使用了环保木材、微水泥和金属,不同材质的拼接处,收口工艺简洁而精准,体现了极致的细节把控。
3. 绿色与环保
作为公共文化项目,我们选用的所有涂料、板材和胶粘剂均符合国家环保标准,真正做到对每一位读者健康负责。
4. 文化的拓展
三里屯街道图书馆场地虽然仅400余平,但其地理位置辐射三里屯幸福一村办公、居民及其周边小区和学校的文化建设需求,打造一个打造集阅读、学习、交流于一体的复合型文化空间势在必行,通过拓展投影幕布、背景音乐等播放设施,三里屯街道图书馆已成功举办多项读书分享会、文化讲座、亲子阅读等品牌活动,使这里成为居民感受文化魅力、丰富精神生活的重要社区阵地。
当装饰施工的喧嚣早已沉淀为书架上的纹理,工具的印记也隐入纸张的缝隙,所有的设计、规划、执行、调校都已隐退为背景,化作空气中恰到好处的静谧与舒适。这座图书馆正以它应有的方式呼吸着——成为了城市里一个温暖而开放的思想容器,静静等待着每一个寻求知识慰藉与灵感闪烁的灵魂。
设计团队:王大宇、白新阳、康英南 工程团队:李文革、李 利、王俊壮 |
























