精品住区 不出城郭而获山林之怡,身居闹市而有林泉之趣
2025.11.14
|
在喧嚣都市的脉络中,庭院以空间为诗,重塑栖居的理想。这里不仅是钢筋水泥的精致组合,更是生活美学的无声叙事——从一砖一瓦的匠心,到光影流转的庭院;从私密居所的安宁,到邻里温情的共鸣。我们邀您步入这片融合自然、艺术与人文的天地,开启关于“家”的深层想象。
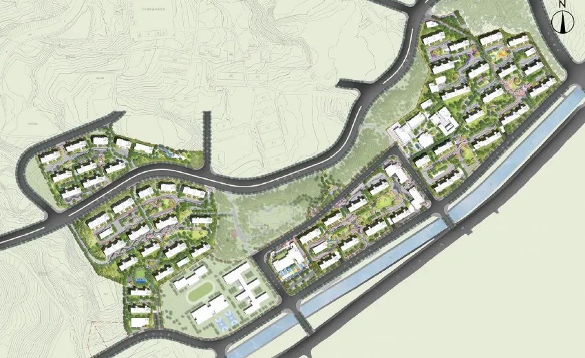
1、规划优势
北京京能·西山印项目坐落于门头沟区新城休闲公园带,紧邻浅山生态修复区与深山生态保育区。项目依托京西优越的山水格局,森林覆盖率高,全年空气质量优于北京市区平均水平。区域历史悠久,文化底蕴深厚。
2、环境优势
山体围绕,森林环抱,水资源丰富 煤矿遗址,历史文化浓厚,空气质量领先北京市区。
地处北京山水格局最佳位置,周边生态环境特色显著。毗邻城市生活圈,背山面水的风水格局。
《周礼》有云:前有照,后有靠,此风水之宝地,前有水给人一种生气之象,后有山给人一种靠山踏实的感觉,可以藏风纳气,稳如泰山,前有明堂开阔,后有靠山稳当,通常被认为是最好的风水。
3、景观重塑
建筑天际线与上体轮廓呼应 楼间视线通透,绿色包围; 山,水,林,云,植被,建筑天际线形成多层次立体景观建筑,景观不再是独立存在。
双核--两园两轴三视线 一核:示范区、商业街配套(社区活力中心); 二核:幼儿园、学校、井架遗址(文化中心); 一园:北侧山地公园(生活康养生态园); 两轴:山体景观轴,水系生态轴; 三视线:山与水对话视线。
4、项目定位
自古以来,中国人便钟情于山水。无论是古人以山水教化明志,还是当下将自然山水视为放松身心、修身养性的场所,山水始终承载着中国人的精神寄托。
正如孔子《论语·雍也》中所说: “仁者乐山,智者乐水” 这是对人类择山水而居最经典的诠释。如今,“山与水” 仍代表着许多人的境界与追求。寄情山水是中国人一直以来的居住梦想。
山水之于中国人绝非仅仅一山一石、一河一川的物理存在。从诗书礼乐,到山水人文,千百年来,山水早已超越了其本体、文化与时代,成为一种独具中国特色的美学符号与精神象征。一席临山居所,在家中便可赏自然风光,观丛林尽染,让身心与生活进行诗意对话。
“不出城郭而获山林之怡,身居闹市而有林泉之趣!”
5、文化提炼
将自然中 “山”,“水”,“林”,"云” 作为场地的主要元素体现生态的自然美学,融入到设计的语言中。地形形成大地自然形态肌理,呈现雅致、近人的符合东方美学的生活画卷。
我家有什么? 常规社区的 生活场景。
我家还有什么? 从空间的维度的 山地优势场景配套。
6、山地高差
项目难点 山地项目景观成本高(城市平地盘的1.3--1.5倍); 开放步道把地块割裂,景观体系不够集中; 后期管控压力增加; 四块地分散,关联性不够紧密。
7、结 语
当暮色漫过庭院的石阶,灯火渐次点亮窗棂,我们终于懂得:真正的住区,是让建筑成为生活的背景板,让人的情感与记忆成为空间的主角。它用细节承载时光的温度,以设计呼应灵魂的渴求,在繁华与静谧间构筑平衡之境。此间栖居,不止于身体的归宿,更是精神的原乡——愿每一个归来的身影,都能在此拾得生活的本真,与世界的从容重逢。 项目经理:罗 龙 主创人员:郭彦琪、刘清源 施工图负责人:郑 辉 设计团队:黄思奇、陈骏池、孙 枫 |




























