让生活“寓”见美好
2023.11.20
|
随着社会发展,青年社群逐渐成为社会主力;基于对美好生活的向往,租赁住宅的行为模式也发生着变化,作为超大城市的北京,市场需要绿色、活力、共享的全龄成长社区,更亟需从青年到家庭高度聚合的新型居住综合体。
草桥泊寓是万科北京第一个涵盖“青年+家庭户型+养老+幼儿园”等多种居住方式及全方位综合配套的全新租赁社区。从2019年启动设计,2020年到2023年历经3年建设,2023年初夏整体竣工亮相,命名 泊寓•院 —— 寓意:让生活“寓”见美好。
▼泊寓东北角
▼泊寓主入口
▼泊寓组团效果
01. 项目概况 Project Overview
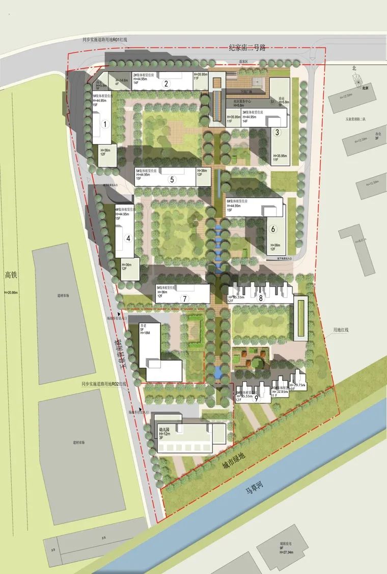
泊寓•院项目位于北京市丰台区花乡草桥村,为集体租赁住房项目,用地为绿隔产业用地;紧邻地铁10号线纪家庙站,临近西南三环和京开高速,交通便捷位置优越。项目总用地面积51200㎡,其中建设用地面积42900㎡,规划建设总建筑面积约13.86万㎡,其中租赁住房9.4万㎡,养老及托幼0.86万㎡,其他社区及停车配套设施3.6万㎡。
▼泊寓整体效果
▼总平面图
02. 设计原则 Design principles
项目产品为青年公寓社区,综合考虑城市规划要求,提升城市空间品质,丰富城市天际线及城市形象。建筑总体布局、造型、色彩注重规划要求及城市区域设计,充分考虑与周边的协调关系,形成完整的空间界面;同时营造多元活力的内外部环境,保证体育、文化、产业的多元融合,充分利用地上及地下空间、提供公众参与的开放空间。
▼产品分布
03. 规划设计 Planning
定位:作为北京城六区中的一员,丰台区不同于坐拥多所国内顶级高校的海淀区和国际化十足的朝阳区, 长期以来的痛点之一就是缺乏对高学历人才的吸引力。随着丰台科技园、丽泽商务区等已经逐渐形成规模,城市需要的是一座全周期生活社区标杆,吸纳、服务和最终为丰台区留住高学历青年人才。草桥泊寓•院力图打造京南最美有氧租赁社区,新北京人的全龄租赁社区。
功能布局:
项目由北到南分为三个围绕开放庭院的组团。北侧两个组团以青年公寓为主,提供约3200间青年公寓;首层沿城市道路为配套商业,社区之心位于东北角下沉广场北侧且紧邻社区主入口。南组团提供近200套两居和三居的成套家庭公寓,以及配套幼儿园和养老设施。
规划形态:
▼规划演变
04. 建筑设计 Architectural design
草桥泊寓•院 力图以焕新、独特的区域城市形象,塑造花乡区域新名片。 设计中以适应标准户型的功能性立面为底,用以下动作提升立面效果。 1)跳动的结构挑板制造阴影及立面韵律; 2)色彩渐变打破立面单调性并强化群团感; 3)屋顶局部造型退台变化塑造天际线轮廓; 4)门户主入口、单元入口、街角商业、社区客厅、下沉广场等近人尺度重要空间塑造视觉焦点。
▼泊寓创新立面
▼泊寓内庭院(宛若一本打开的书)
▼阳光照耀下的泊寓内庭院
▼单体立面
Supporting system
项目团队对青年客群的需求做了深入的分析,对不同配套功能的使用频率和使用场景进行分类,结合多个青年公寓和住宅项目配套实际使用情况调研与评估,最终通过城市、组团、单元多层次的组合圈打造完备的配套体系。
便利商街:针对居住地青年人才需求,项目提供符合年轻人生活节奏、满足全方位需求的的美好生活商街,包含餐饮聚会、零售超市、洗衣干洗、生鲜菜市场、美容美发、休闲娱乐、周末集市等;
高颜值共享社区客厅:入口处打造社区客厅,为社区浓度核心,涵盖前台、会客聚会、影音室、就餐、健身 、自助超市、共享办公、网络、书吧等功能模块;
幼儿教育:完善的幼儿园教育配置,是项目的一大亮点;通过引进优质的教育资源,为年轻父母提供便捷的优质安心教育;
▼幼儿园整体效果
▼幼儿园主入口
▼园区景观和建筑
Interior space
项目采用装配式装修实现精装交付。各单元开间、进深均采用标准化模数,实现户型标准化。装配式装修涵盖装配式墙面、装配式地面、集成卫生间、集成厨房、装配式顶棚、装配式收纳、强电SI体系、水暖SI体系、预制标准门套等标准体系,极大提高施工速度,同时提升装修效果与居住品质。
Conclusion
2023年6月,泊寓•院草桥社区通过验收和业主考核,实现全面交付使用。白天,孩童在这里嬉戏和玩耍,周末时光、休闲的夜晚,园区跑道和社区客厅,总有青年人活动的身影和学习的场景。开业不到1年,项目已实现90%以上的租住率,真正成为绿色、活力、共享的全龄化成长社区。
▼园区夜景
建筑设计:北京维拓时代建筑设计股份有限公司 |




























