维小康 泰康·琴园超级体验中心
2021.12.06

婆娑树影,窥见一丝芳华
乐龄年代,亦有诗和远方
泰康之家·琴园 是泰康在山东布局的首个高品质养老社区,目前正在建设中。作为率先开幕的琴园超级体验中心,是围绕泰康 “活力养老、文化养老、健康养老、科技养老” 核心理念,展示泰康“温馨的家、高品质医疗保健中心、开放的大学、优雅的俱乐部、长辈心灵和精神的家园”五位一体养老生活方式的场所。
01. 与"海"结缘
“山如琴,海为弦”,青岛,别称琴岛,山海之城,艺术之都。项目基地位于青岛北部城阳区,驯虎山路以东,青特公园内,北有自然湖面,南有公园密林,景观资源丰富。超体与北侧的养老社区隔湖相望,遥相呼应。


02."水晶礼盒"
作为国内险企在山东布局的首个养老社区项目,泰康之家的养老生活理念和生活方式无疑是赠送给青岛老人的一份厚礼。概念之初,设计以”放置于林中、水畔的水晶礼盒“为题,呼应建筑需要表达的功能和精神内涵。

03. 大道至简
项目基地用地面积较小,周边有大量需要保护、保留的生态资源。建筑设计需要严格限定在一个14米x38米的矩形范围内。建筑南侧是静谧的林地,而北侧则直面未来的养老社区和活力中心。因此,南北两侧需要获得最大的面宽延展,将生态自然和社区人文纳入到超体内部。

对于曾经沧海的长者们来说,当下形式浮夸、标新立异的“网红售楼处”体验,并不符合长者们在简单质朴中寻求细腻情感的精神特征。
“天下难事必作于易,天下大事必作于细”,设计采用最简洁的建筑体量,通过与环境良好的融合关系和于微见著的细腻处理,让老人们真正感受未来生活的美好愿景。

04. 于微见著
超体建筑面积约900㎡,地上2层。建筑功能包括接待展示区、五位一体生活方式展示区、洽谈区、生活体验区、记忆小镇、样板间等。
设计首先根据建筑外廓尺度,以1400mm为基本模数划分空间和表皮,建筑、室内以及外立面幕墙等紧密对应,形成高度的秩序感和稳定性。

整体立面设计以玻璃幕墙为主。采用大海不同的形态作为表达意向,寓意生活情绪的变化——或风平浪静,或波光粼粼,或激情澎湃。

三种玻璃可视性对比——超白玻 》渐变彩釉玻璃 》U玻
材料上采用3种类型的玻璃组合,将简洁明了的建筑体量进行细致划分,增强建筑的细节和趣味性。并根据不同室内功能选择不同材质,满足功能上的需求,同时将自然引入超体内部,与自然景观“无边界融合”形成共鸣。

在幕墙体系的设计中,根据玻璃的合理尺度进行杆件划分,通过细节尺寸的控制,使立面可见构件最简化。

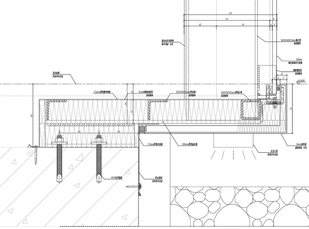
彩釉玻璃与超白玻交接幕墙构造节点

彩釉玻璃与U玻交接幕墙构造节点

底部灯带幕墙构造节点
建筑室外以白色冷色调为主,室内装饰和照明以暖色系融入。结合线性洗墙灯与点状筒灯的不同表现,进一步丰富建筑光影表现。并结合室内一部贯穿上下的橙色楼梯,提亮整个建筑立面。

05. 观时而歌
室内设计体现温馨、纯净的空间氛围及平和、雅致的审美情趣。室内借由建筑引入周边自然的光、形、影,内外交融,相应成趣。




在平和的空间中,通过软装和自然的引入 为内部空间增添了几抹亮色 创造细腻的“小情趣”
06. 对话自然

应对相对局促的基地,景观设计欲扬先抑,穿过入口,“水晶礼盒”豁然于眼前。

与公园相融的自然形态景观,与建筑日夜互为背景,形成刚柔、实虚的对比,演绎完整的空间艺术画卷。

内场庭院以静水面为主,理性纯粹的建筑、温馨热力的室内、自然柔美的景观,相互之间形成了更为有趣的融合效果。



首层平面

二层平面

立面图
07. 结 语
琴园超级体验中心是感性与理性的共生体,更是文化与生活方式的具象表达,我们期待超体能够真正成为一份献给青岛老人的礼物,更期待未来琴园养老社区的完美呈现。

(作者:邸威、牛原绿、姜世晅)


